Пентхаус в ЖК «Artisan» («Артизан»), ул. Арбат, д.39, Корпус Новый, 143 кв. м id объекта: 4866

ул. Арбат, д.39
Вернуться в каталог
id объекта: 4866
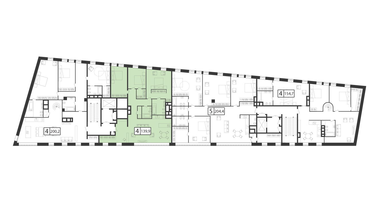
Площадь м2 143 м2
Этаж 5
Уровней 2
Отделка Без отделки
Терасса есть
Высота потолков 3.55
Количество сан. узлов 2
Отправить на почту
Описание объекта

Предлагается 4-комнатный пентхаус площадью 204,4 м2 на 5 этаже в корпусе Новый, ЖК «Artisan» (Артизан). Высота потолков составляет – 3.55 м.

Клубный дом премиум-класса «Artisan» находится на углу между Арбатом и Кривоарбатским переулком. Со стороны Арбата его фасад украшен декоративной штукатуркой с лепными элементами. Такое решение было принято для того, чтобы максимально правдоподобно восстановить исторический облик здания в стиле ампир. Со стороны Кривоарбатского переулка применяется структурное остекление с двухкамерными стеклопакетами Guardian и кирпичом ручной формовки, что придаёт зданию дух современности. 

Дом состоит из двух корпусов, трёх- и пятиэтажного. В них предлагается 30 изысканных резиденций. Из их панорамных окон открываются уникальные виды на любимейшую улицу Москвы, в тихий зеленый переулок или же в благоустроенный внутренний двор с продуманными ландшафтным дизайном и озеленением.  

Введите код из смс
Цены на некоторые объекты, размещенные на сайте скрыты от публичного просмотра. Чтобы получить цены введите, пожалуйста, свои контактные данные.
Отправить ссылку на почту
Нажимая на кнопку, вы соглашаетесь c нашей политикой конфиденциальности
Спасибо за заявку!
Мы свяжемся с вами в ближайшее время для уточнения деталей подбора.