Двухуровненвый пентхаус, ул. Солянка, д.7, ЖК «Дом с Атлантами», 330.6 кв.м id объекта: 4893

ул. Солянка, д.7
Вернуться в каталог
id объекта: 4893
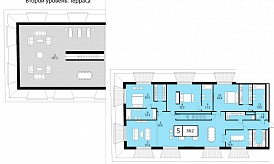
Площадь м2 330.6 м2
Уровней 2
Отделка С отделкой
Терасса есть
Количество сан. узлов 4
Отправить на почту
Описание объекта

Предлагается великолепный пентхаус, общей площадью 330,6 м2 на 4-м этаже в современном комплексе премиум класса «Дом с Атлантами». 

Расположенный на Солянке «Дом с Атлантами» – не просто монолитно-кирпичный клубный дом премиум-класса, но и выявленный объект культурного наследия.

Его история начинается в 1776 году с каменных палат, которые разместил на территории своей усадьбы титулярный советник И. А. Васков. С годами здание менялось – к нему пристраивались новые этажи, добавлялись пристройки и флигели, в 1882 году «Дом с Атлантами» был перестроен по проекту В. Н. Карнеева.

За его долгую жизнь оно успело побывать в собственности у князя Оболенского, купца Расторгуева и советника Волкова. С 1970 года в здании находился проектный институт Минздрава РСФСР.

Сегодня же в доме предлагается 19 лотов, которые включают в себя 12 квартир, 4 таунхауса, 2 пентахауса и 1 виллу, площадью от 79 до 313 кв. м с высококлассной отделкой.

Дизайн интерьеров квартир разрабатывается ведущим архитектурным бюро "Цимайло, Ляшенко и партнеры" в трех вариантах на выбор. Высота потолков 4 метра и большие окна позволяют создать по-настоящему интересные интерьеры. Кухни и санузлы во всех апартаментах будут оборудованы встроенной техникой премиум-класса.

Жителям дома предлагается семиуровневое парковочное пространство на 42 машино-место, а также два гостевых. На паркинге оборудована станция для зарядки электрокаров.

Главный фасад «Дома с Атлантами» украшают фигуры атлантов, поддерживающих балкон над центральным входом, а также львиные маски под карнизом и жезлы Меркурия на замковых камнях окон первого этажа. Балконы оформлены литыми ограждениями из чугуна, подчёркивающим неоклассические стены.

Комплекс находится на старинной улице Солянка в пешей доступности от Кремля. От него можно прогуляться не только до музеев и театров, его жителям доступно огромное множество бутиков, кафе, ресторанов, магазинов и клубов, которыми так богат московский центр.

Из квартир будет открываться прекрасный вид на высотку на Котельнической набережной, церковь Рождества Пресвятой Богородицы и Кремль.

Первый этаж с отдельным входом отведён под офисные помещения.

Особое внимание уделяется современным инженерными системам, обеспечивающим высокий уровень качества жизни. После завершения реставрации здание будет обеспечено приточно-вытяжной вентиляцией и центральным кондиционированием, а также многоуровневой системой очистки воды и воздуха.



Ждем Ваших звонков.

Введите код из смс
Цены на некоторые объекты, размещенные на сайте скрыты от публичного просмотра. Чтобы получить цены введите, пожалуйста, свои контактные данные.
Отправить ссылку на почту
Нажимая на кнопку, вы соглашаетесь c нашей политикой конфиденциальности
Спасибо за заявку!
Мы свяжемся с вами в ближайшее время для уточнения деталей подбора.