Пентхаус в ЖК «West Garden», ул. Минская, Корпус 11, 203,23 кв. м id объекта: 4897

Минская улица
Вернуться в каталог
id объекта: 4897
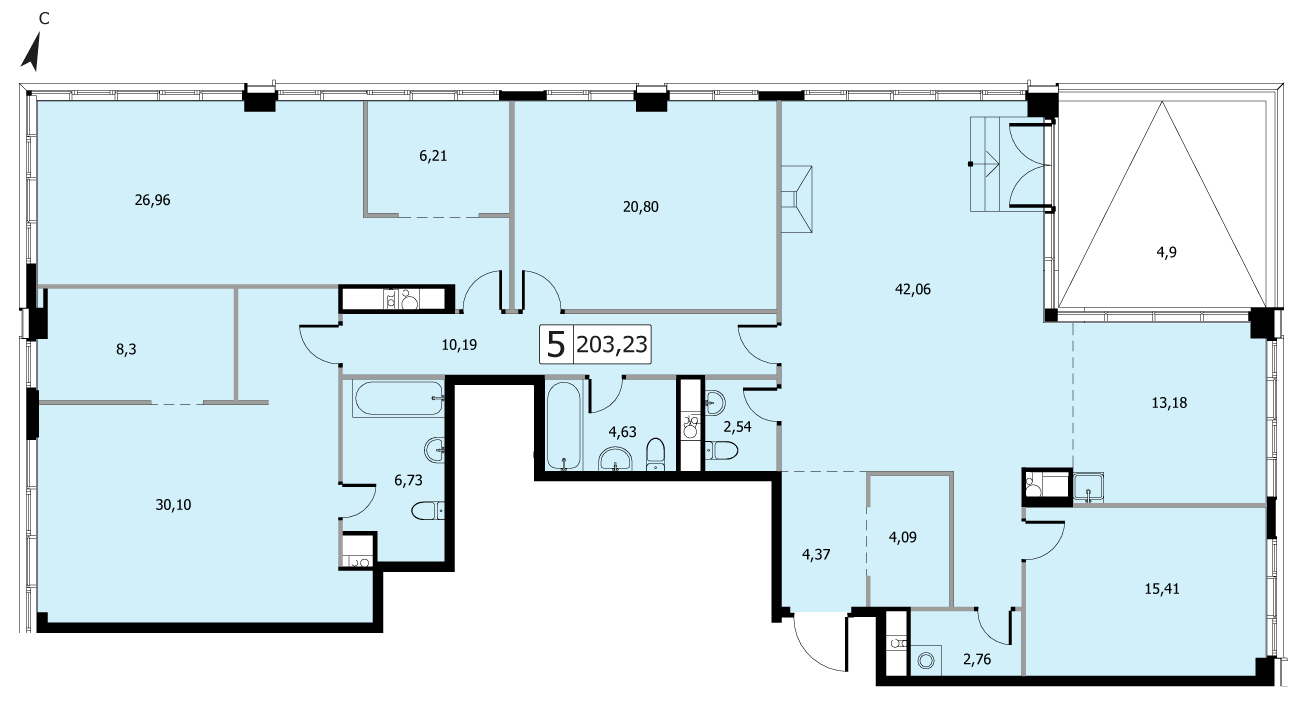
Площадь м2 203,23 м2
Этаж 13
Уровней 1
Отделка Без отделки
Высота потолков 4.2
Количество сан. узлов 3
Отправить на почту
Описание объекта

Предлагается великолепный пентхаус премиум-класса с крытой террасой и панорамным остеклением в корпусе 11 - River Line на 13 этаже, общей площадью 203,23 м2 в жилом комплексе «West Garden» по адресу: ул. Минская, район Раменки. Высота потолков - 4.2 м, без отделки, с возможностью установки камина. 

West Garden – это возможность жить на природе, оставаясь в центре событий мегаполиса. Престижный проект на западе Москвы в районе Раменки сочетает в себе все преимущества жизни на свежем воздухе и удобное местоположение с непревзойденным комфортом. 

Общая площадь территории проекта составляет 20 гектар, треть из которой занимает парковая зона. Проект благоустройства предполагает высадку более 1500 деревьев, кустарников, а также не менее 80 видов цветов. Рядом находится Матвеевский лес, река Сетунь и Раменка. Для жильцов комплекса обустроена набережная с приватным выходом, где они смогут отдыхать и прекрасно проводить время, наслаждаясь красивыми пейзажами. Территория вдоль реки длиной два километра будет благоустроена, проект также включает место для проведения пикников. West Garden – это 19 корпусов, возведенных по кирпично-монолитной технологии. Архитектурная концепция жилого комплекса разрабатывалась бюро SPEECH, соответствует всем трендам и высоким стандартам. Озеленение осуществляется специалистами бюро ландшафтного дизайна Arteza. 

Каждый дом в West Garden оборудован техническими помещениями для хранения велосипедов и колясок. Подземный паркинг, рассчитанный на 500 машиномест, оснащен прямыми лифтами. Поставив на парковку личный автомобиль, вы сможете напрямую доехать до нужного жилого этажа без необходимости пересадки в другой лифт. К услугам жильцов представлено приватное центральное лобби, оформленное в единой стилистике с общей концепцией. Проект предполагает наличие в лобби зала для переговоров, а также небольшого уютного кафе. 

Ждём Ваших звонков!


Введите код из смс
Цены на некоторые объекты, размещенные на сайте скрыты от публичного просмотра. Чтобы получить цены введите, пожалуйста, свои контактные данные.
Отправить ссылку на почту
Нажимая на кнопку, вы соглашаетесь c нашей политикой конфиденциальности
Спасибо за заявку!
Мы свяжемся с вами в ближайшее время для уточнения деталей подбора.